|
Český návod k obsluze Ohřívač vody Mora EOM 150 PKT Pro zvětšení klikněte na obrázek
Obsah českého návodu Ohřívač vody Mora EOM 150 PKT
- Zařazení produktu: Ohřívače vody Mora
- Značka: Mora
- Popis a obsah balení
- Technické informace a základní nastavení
- Často kladené otázky – FAQ
- Jak vyřešit problém (nelze zapnout, nereaguje, píše chybu, co dělat když...)
- Autorizovaný servis Mora Ohřívače vody
|
Návod k obsluze Ohřívač vody Mora EOM 150 PKT obsahuje základní pokyny,
které je třeba respektovat. Před uvedením do provozu si pozorně přečtěte tento návod.
Dodržujte všechny bezpečnostní a výstražné pokyny a řiďte se uvedenými doporučeními.
Návod je nedílnou součástí výrobku Mora a v případě jeho prodeje nebo přemístění by měl být předán společně s výrobkem.
Dodržování tohoto návodu k použití je bezpodmínečným předpokladem pro ochranu
zdraví osob a pro uznání odpovědnosti výrobce za případné vady výrobku v průběhu záruční lhůty.
Stáhněte si oficiální Mora návod,
v němž naleznete pokyny k instalaci, použití, údržbě i servisu vašeho výrobku.
A nezapomeňte – nevhodným používáním výrobku Mora výrazně zkracujete jeho životnost!
|
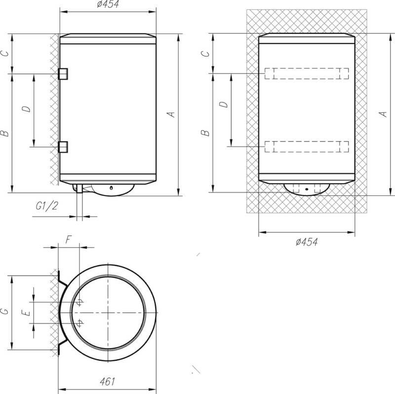
Popis produktuElektrický ohřívač MORA kulatý s termostatem objem 150 l, možný přívod pro více odběrových míst, svislá instalace, elektrické ponorné těleso, regulace teploty otočným termostatem - možnost nastavení až do 65°C, hospodárné nastavení 55°C, ochrana proti zamrznutí 10°C. Kontrolka topného tělesa, bimetalový teploměr ukazatele teploty vody v zásobníku ohřívače. Provozní tlak 6 až 9 barů. Speciální smalt, hořčíková anoda. Snadná montáž i údržba. Připojení do napájecí sítě G 1/2. Záruka na smaltovanou nerezovou nádobu 4 roky. Dokumentace k tomuto produktu - MOREOM150PKT_návod (Návod k použití CZ, 822.15 KB)
|
Návod k obsluze Ohřívač vody Mora EOM 150 PKTStažení PDF návodu k obsluze pro Ohřívač vody Mora EOM 150 PKT není v současné době možné. Soubor není připraven.
Technické parametry Ohřívač vody Mora EOM 150 PKT| Záruka | 24 měsíců | | Další parametry | | Konstrukce ohřívače vody | zásobníkový | | Poloha instalace | svislý (vertikální) | Objem ohřívače vody Objem zásobníku u ohřívačů vody">Objem ohřívače vody | 150 l | | Druh ohřevu | elektrický | | Indikátor teploty | Ano | | Příkon | 2000 W | | Rozměry výrobku | | Šířka výrobku | 45.4 cm | | Výška výrobku | 130.5 cm | | Hloubka výrobku | 46.1 cm | | Hmotnost výrobku | 41.0 kg | | Rozměry balení | | Šířka balení | 49.0 cm | | Výška balení | 133.0 cm | | Hloubka balení | 48.0 cm | | Hmotnost balení | 44.0 kg |
Hodnocení80% uživatelů tento produkt doporučuje ostatním. Jak jste na tom Vy?

Tento produkt už hodnotilo 67 majitelů. Přidejte i Vaše hodnocení a zkušenosti s výrobkem.
Diskuze
Zeptejte se našich techniků, máte-li problémy s nastavením, nebo jste narazili v návodu na nejasnosti.
Využijte naši moderovanou diskuzi.
Diskuze je veřejná a slouží i ostatním návštěvníkům našich stránek, kteří se potýkají s podobnými problémy.
Diskuze je zatím prázdná - vložte první příspěvek
Vložit nový příspěvek / Dotaz / Komentář:
|
|
|
| Žádost o návod |
Nenašli jste návod, který hledáte? Dejte nám vědět a my se pokusíme chybějící návod doplnit:
Hledám návod / Žádost o návod
Vaše nejnovější žádosti o návod:
Prosím o návod k ovládání elektrické trouby u kombinovaného sporáku Amica Supernova.... záložní zdroj APC Back-UPS 700VA ... Mám záujem o návod k teplovzdušnej fritéze od
Klarstein - AuraAir 1700W 10L.
Ďakujem pekne... rx v-657
díky... Prosím o zaslání uživatelské příručky k foto SONY 6100
Děkuji Jar. Hák... tesla VM 2103 ...
|
| Diskuze |
Poslední příspěvky v diskuzi:
Plast nevychází ven Autor: Blanka 3D pero 3Doodler Start a 72 Dobrý den, 3d pero je nabite, po zapnutí sviti chvíli cervene, po zahřátí zeleně, když ho zapnu aby tekl ven plast tak nic neteče...jakoby uvnitř byla zacpaná. Śpička je ocistena od zbytku plastu, další tyčinka lze vložit max. 2 cm.
Předem děkuji za radu, zda ... kávovar Siemens EQ6 Autor: neznámý Espresso Siemens EQ.6 plus TE651209RW černé Dobrý den, kávovar poukazoval na čištění tabletou do zásobníku na mletou kávu. Po ukončení čistícího procesu kávovar nemele kávu, pouze dávkuje vodu. Děkuji za odpověď... Candy automatic tempo Autor: Jaroslava Automatická pračka Candy AQUA 1142 D1 Na pračce mi bliká vanička s kapkou ..a nejde otevřít a ani zapnout . Dole jsem vyčistila i filtr.dekuji... Logi k540 uspavani Autor: neznámý Klávesnice s myší Logitech Wireless Combo Dobry den, prosim o pomoc s nastavenim klavesnice Logi K540. Aj pocas prave sa pravidelne uspi a ked zacnem pisat, tak casto aj pocas prace odrazu mi napise iba polovicu slova. Podotykam ze ve spojeni cez USB kluc a softwer, spolupracuje s mysou Ergo 575S cez ten isty usb kluc. P... Návod k obsluze Autor: Martina Espresso Melitta CI Touch Černé černé Dobrý den, při hledání návodu k obsluze ke kávovaru Mellita ci touch jsem narazila na váš dotaz ohledně kavovaru a chtěla bych Vas požádat, zda byste byl ochoten mi nafotit návod k obsluze tohoto kavovaru.Koupila jsem ho repasovany a návod bohužel nemám a nedař... |
|