|
Český návod k obsluze Ohřívač vody Mora EOMK 150 SHSM Pro zvětšení klikněte na obrázek
Obsah českého návodu Ohřívač vody Mora EOMK 150 SHSM
- Zařazení produktu: Ohřívače vody Mora
- Značka: Mora
- Popis a obsah balení
- Technické informace a základní nastavení
- Návod k obsluze
- Často kladené otázky – FAQ
- Jak vyřešit problém (nelze zapnout, nereaguje, píše chybu, co dělat když...)
- Autorizovaný servis Mora Ohřívače vody
|
Návod k obsluze Ohřívač vody Mora EOMK 150 SHSM obsahuje základní pokyny,
které je třeba respektovat. Před uvedením do provozu si pozorně přečtěte tento návod.
Dodržujte všechny bezpečnostní a výstražné pokyny a řiďte se uvedenými doporučeními.
Návod je nedílnou součástí výrobku Mora a v případě jeho prodeje nebo přemístění by měl být předán společně s výrobkem.
Dodržování tohoto návodu k použití je bezpodmínečným předpokladem pro ochranu
zdraví osob a pro uznání odpovědnosti výrobce za případné vady výrobku v průběhu záruční lhůty.
Stáhněte si oficiální Mora návod,
v němž naleznete pokyny k instalaci, použití, údržbě i servisu vašeho výrobku.
A nezapomeňte – nevhodným používáním výrobku Mora výrazně zkracujete jeho životnost!
|
Popis produktuElektrický ohřívač MORA KOMFORT, objem 150 l, možný přívod pro několik odběrových míst, svislá instalace, velmi kvalitní izolace omezující ztráty. Topná příruba s trubicovými tělesy na ohřev vzduchu. Elektronická řídící jednotka. Hlavní vypínač, tlačítko k seřízení teploty. Rozsah nastavení teploty od 10°C do 75°C. Ukazatel teploty se 7 diodami. Ochrana proti náhodnému sepnutí. Ochrana proti přehřátí. Funkce ochrany proti bakterii legionella. Vypínač funkce EcoSmart. Sledování spotřeby vody: Funkce ECO Smart. Paměť uložených dat i pří výpadku napětí. Ukazatel chytrého provozu. Ukazatel chybových hlášení. Provozní tlak 6 až 9 barů. Ochrana proti korozi prostřednictvím smaltu a hořčíkové anody. Snadná montáž i údržba. Připojení do napájecí sítě G 1/2. Záruka na smaltovanou ocelovou nádobu 6 let. - MOREOMK150SHSM_návod (Návod k použití CZ, 1.26 MB)
|
Návod k obsluze Ohřívač vody Mora EOMK 150 SHSM
Níže je zobrazen náhled *.pdf souboru s návodem k obsluze.
Jedná se o zkrácenou verzi. Informace o souboru: 20 stránek, formát PDF, velikost souboru 1.32 MB Pokud máte zájem o přístup k celému návodu, přejděte prosím na stránku: Objednávka návodu k obsluze Ohřívač vody Mora EOMK 150 SHSMPo dokončení objednávky se symbolickým poplatkem Vám bude zaslán odkaz pro zobrazení úplného návodu na Vaši emailovou adresu. Zároveň si můžete návod stáhnout (uložit) do svého počítače.
Náhled *.pdf souboru s návodem k obsluze. Zobrazit celý návod k obsluze Ohřívač vody Mora EOMK 150 SHSM
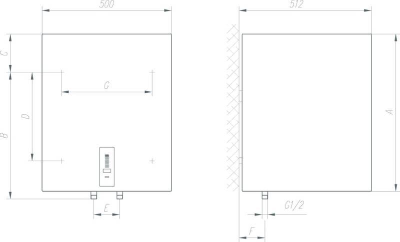
Technické parametry Ohřívač vody Mora EOMK 150 SHSM| Záruka | 24 měsíců | | Další parametry | | Konstrukce ohřívače vody | zásobníkový | | Poloha instalace | svislý (vertikální) | Objem ohřívače vody Objem zásobníku u ohřívačů vody">Objem ohřívače vody | 150 l | | Druh ohřevu | elektrický | | Indikátor teploty | Ano | | Příkon | 2000 W | | Rozměry výrobku | | Šířka výrobku | 50.0 cm | | Výška výrobku | 134.5 cm | | Hloubka výrobku | 51.2 cm | | Hmotnost výrobku | 50.0 kg | | Rozměry balení | | Šířka balení | 60.0 cm | | Výška balení | 145.5 cm | | Hloubka balení | 57.5 cm | | Hmotnost balení | 54.0 kg |
Hodnocení100% uživatelů tento produkt doporučuje ostatním. Jak jste na tom Vy?

Tento produkt už hodnotilo 35 majitelů. Přidejte i Vaše hodnocení a zkušenosti s výrobkem.
Diskuze
Zeptejte se našich techniků, máte-li problémy s nastavením, nebo jste narazili v návodu na nejasnosti.
Využijte naši moderovanou diskuzi.
Diskuze je veřejná a slouží i ostatním návštěvníkům našich stránek, kteří se potýkají s podobnými problémy.
Diskuze je zatím prázdná - vložte první příspěvek
Vložit nový příspěvek / Dotaz / Komentář:
|
|
|
| Žádost o návod |
Nenašli jste návod, který hledáte? Dejte nám vědět a my se pokusíme chybějící návod doplnit:
Hledám návod / Žádost o návod
Vaše nejnovější žádosti o návod:
Čtečka knih solaris,... Mixér, Kitchenaid Ultra power Electronic Mi Ing Sensor 220-240V-50Hz 500W, Mod. 5KSB52EMY4,SER.WRO665373.Tento mixér v perfektnom stave som zdedila.... Dobrý den,
dostala jsem lampičku Avide Calendar Office - Stolní kancelářská lampička s displejem v hnědé barvě LED 6W, a nedaří se mi na ... REDMI Pad 2... HERNÍ ŽIDLE S PODNOŽKOU QUATTRO CARBON RED... Gramofon Victrola Premiere V1, repro subwofer + poprosil bych o doporučení, jaká repra jsou k výrobku nejlepší...
|
| Diskuze |
Poslední příspěvky v diskuzi:
Dotaz Autor: Oldřich Přenosný reproduktor JBL Charge Essential 2 Ježíšek mi přinesl JBL Charge Essential 2. Zajímalo by mě, co znamená, když tlačítko on/ off při provozu při plném nabití začne blikat. V přiloženém návodu jsem tuto informaci nenašel. Děkuji Oldřich Maudr. ... mob. tel Motorola moto 32g Autor: Jan Mobilní telefon Motorola Moto G32 6GB při pořizování fotek bych byl rád kdyby telefon vydával zvuk (cvaknutí) - neumím to nastavit - pokud to vůbec jde... Zubní kartáček Oral B iO series 3 Autor: Petra Zubní kartáček Oral-B iO Series 3 Ke kartáčku není přiložen jednoznačný návod. Obrázky opravdu nic moc nevysvětlí. Marně jsem poté hledala odpověď tady. Chtěla jsem si stáhnout návod, ale stále není k dispozici.
Jak tedy poznám, který modus je zapnutý? Je možné zaslat návod na mail?... Zavážecí loďka GPS V020 Autor: Petr Zavážecí loďka GPS V020 Včera jsem si koupil od vás cz návod k obsluze k této loďce, ale není to český návod, je to nějaká česko - slovenská hatmatilka, kterou najdu kdekoli na internetu a nemusím platit 100Kč. Takže bych rád český návod.
Děkuji
Alexandrovič ... Minecraft legends Jak otevřít knihu písní? Autor: neznámý Hra Nintendo SWITCH Minecraft Legends: Deluxe Nedaří se mi po stisknutí tlačítka R na Nintendo Switch otevřít knihu písní? Nemáte někdo radu co s tím?... |
|