|
Český návod k obsluze Ohřívač vody Mora EOMK 50 SHSM Pro zvětšení klikněte na obrázek
Obsah českého návodu Ohřívač vody Mora EOMK 50 SHSM
- Zařazení produktu: Ohřívače vody Mora
- Značka: Mora
- Popis a obsah balení
- Technické informace a základní nastavení
- Návod k obsluze
- Často kladené otázky – FAQ
- Jak vyřešit problém (nelze zapnout, nereaguje, píše chybu, co dělat když...)
- Autorizovaný servis Mora Ohřívače vody
|
Návod k obsluze Ohřívač vody Mora EOMK 50 SHSM obsahuje základní pokyny,
které je třeba respektovat. Před uvedením do provozu si pozorně přečtěte tento návod.
Dodržujte všechny bezpečnostní a výstražné pokyny a řiďte se uvedenými doporučeními.
Návod je nedílnou součástí výrobku Mora a v případě jeho prodeje nebo přemístění by měl být předán společně s výrobkem.
Dodržování tohoto návodu k použití je bezpodmínečným předpokladem pro ochranu
zdraví osob a pro uznání odpovědnosti výrobce za případné vady výrobku v průběhu záruční lhůty.
Stáhněte si oficiální Mora návod,
v němž naleznete pokyny k instalaci, použití, údržbě i servisu vašeho výrobku.
A nezapomeňte – nevhodným používáním výrobku Mora výrazně zkracujete jeho životnost!
|
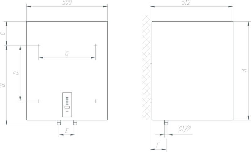
Popis produktuElektrický ohřívač MORA KOMFORT, objem 50 l, možný přívod pro několik odběrových míst, svislá instalace, velmi kvalitní izolace omezující ztráty. Topná příruba s trubicovými tělesy na ohřev vzduchu. Elektronická řídící jednotka. Hlavní vypínač, tlačítko k seřízení teploty. Rozsah nastavení teploty od 10°C do 75°C. Ukazatel teploty se 7 diodami. Ochrana proti náhodnému sepnutí. Ochrana proti přehřátí. Funkce ochrany proti bakterii legionella. Vypínač funkce EcoSmart. Sledování spotřeby vody: Funkce ECO Smart. Paměť uložených dat i pří výpadku napětí. Ukazatel chytrého provozu. Ukazatel chybových hlášení. Provozní tlak 6 až 9 barů. Ochrana proti korozi prostřednictvím smaltu a hořčíkové anody. Snadná montáž i údržba. Připojení do napájecí sítě G 1/2. - MOREOMK50SHSM_návod (Návod k použití CZ, 1.26 MB)
|
Návod k obsluze Ohřívač vody Mora EOMK 50 SHSM
Níže je zobrazen náhled *.pdf souboru s návodem k obsluze.
Jedná se o zkrácenou verzi. Informace o souboru: 20 stránek, formát PDF, velikost souboru 1.32 MB Pokud máte zájem o přístup k celému návodu, přejděte prosím na stránku: Objednávka návodu k obsluze Ohřívač vody Mora EOMK 50 SHSMPo dokončení objednávky se symbolickým poplatkem Vám bude zaslán odkaz pro zobrazení úplného návodu na Vaši emailovou adresu. Zároveň si můžete návod stáhnout (uložit) do svého počítače.
Náhled *.pdf souboru s návodem k obsluze. Zobrazit celý návod k obsluze Ohřívač vody Mora EOMK 50 SHSM
Technické parametry Ohřívač vody Mora EOMK 50 SHSM| Záruka | 24 měsíců | | Další parametry | | Konstrukce ohřívače vody | zásobníkový | | Poloha instalace | svislý (vertikální) | Objem ohřívače vody Objem zásobníku u ohřívačů vody">Objem ohřívače vody | 50 l | | Druh ohřevu | elektrický | | Indikátor teploty | Ano | | Příkon | 2000 W | | Rozměry výrobku | | Šířka výrobku | 50.0 cm | | Výška výrobku | 61.0 cm | | Hloubka výrobku | 51.2 cm | | Hmotnost výrobku | 28.0 kg | | Rozměry balení | | Šířka balení | 60.0 cm | | Výška balení | 72.0 cm | | Hloubka balení | 57.5 cm | | Hmotnost balení | 31.0 kg |
Hodnocení90% uživatelů tento produkt doporučuje ostatním. Jak jste na tom Vy?

Tento produkt už hodnotilo 33 majitelů. Přidejte i Vaše hodnocení a zkušenosti s výrobkem.
Diskuze
Zeptejte se našich techniků, máte-li problémy s nastavením, nebo jste narazili v návodu na nejasnosti.
Využijte naši moderovanou diskuzi.
Diskuze je veřejná a slouží i ostatním návštěvníkům našich stránek, kteří se potýkají s podobnými problémy.
Diskuze je zatím prázdná - vložte první příspěvek
Vložit nový příspěvek / Dotaz / Komentář:
|
|
|
| Žádost o návod |
Nenašli jste návod, který hledáte? Dejte nám vědět a my se pokusíme chybějící návod doplnit:
Hledám návod / Žádost o návod
Vaše nejnovější žádosti o návod:
záložní zdroj APC Back-UPS 700VA ... Mám záujem o návod k teplovzdušnej fritéze od
Klarstein - AuraAir 1700W 10L.
Ďakujem pekne... rx v-657
díky... Prosím o zaslání uživatelské příručky k foto SONY 6100
Děkuji Jar. Hák... tesla VM 2103 ... aku pilka HAYAMI HA-1001...
|
| Diskuze |
Poslední příspěvky v diskuzi:
Logi k540 uspavani Autor: neznámý Klávesnice s myší Logitech Wireless Combo Dobry den, prosim o pomoc s nastavenim klavesnice Logi K540. Aj pocas prave sa pravidelne uspi a ked zacnem pisat, tak casto aj pocas prace odrazu mi napise iba polovicu slova. Podotykam ze ve spojeni cez USB kluc a softwer, spolupracuje s mysou Ergo 575S cez ten isty usb kluc. P... Návod k obsluze Autor: Martina Espresso Melitta CI Touch Černé černé Dobrý den, při hledání návodu k obsluze ke kávovaru Mellita ci touch jsem narazila na váš dotaz ohledně kavovaru a chtěla bych Vas požádat, zda byste byl ochoten mi nafotit návod k obsluze tohoto kavovaru.Koupila jsem ho repasovany a návod bohužel nemám a nedař... Návod k obsluze Autor: Martina Espresso Melitta CI Touch Černé černé Dobrý den, při hledání návodu k obsluze ke kávovaru Mellita ci touch jsem narazila na váš dotaz ohledně kavovaru a chtěla bych Vas požádat, zda byste byl ochoten mi nafotit návod k obsluze tohoto kavovaru.Koupila jsem ho repasovany a návod bohužel nemám a nedař... Klávesnice Autor: Pavel Klávesnice E-Blue Mazer Mechanical 729, US Jak resetovat klávesnici obecně ?... Červené tlačítko Autor: Jana Televize Thomson 43QG7C14 Potřebuji informaci k televizoru Thompson, kde najdu červené tlačítko
Děkuji ... |
|