|
Český návod k obsluze Ohřívač vody Mora EOMKS 50 PHSM Pro zvětšení klikněte na obrázek
Obsah českého návodu Ohřívač vody Mora EOMKS 50 PHSM
- Zařazení produktu: Ohřívače vody Mora
- Značka: Mora
- Popis a obsah balení
- Technické informace a základní nastavení
- Často kladené otázky – FAQ
- Jak vyřešit problém (nelze zapnout, nereaguje, píše chybu, co dělat když...)
- Autorizovaný servis Mora Ohřívače vody
|
Návod k obsluze Ohřívač vody Mora EOMKS 50 PHSM obsahuje základní pokyny,
které je třeba respektovat. Před uvedením do provozu si pozorně přečtěte tento návod.
Dodržujte všechny bezpečnostní a výstražné pokyny a řiďte se uvedenými doporučeními.
Návod je nedílnou součástí výrobku Mora a v případě jeho prodeje nebo přemístění by měl být předán společně s výrobkem.
Dodržování tohoto návodu k použití je bezpodmínečným předpokladem pro ochranu
zdraví osob a pro uznání odpovědnosti výrobce za případné vady výrobku v průběhu záruční lhůty.
Stáhněte si oficiální Mora návod,
v němž naleznete pokyny k instalaci, použití, údržbě i servisu vašeho výrobku.
A nezapomeňte – nevhodným používáním výrobku Mora výrazně zkracujete jeho životnost!
|
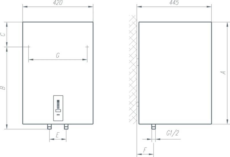
Popis produktuElektrický ohřívač MORA SLIM, objem 50 l, možný přívod pro několik odběrových míst, svislá instalace, elektrické ponorné ohřívací těleso. Elektronická řídící jednotka. Hlavní vypínač, tlačítko k seřízení teploty. Rozsah nastavení teploty od 10°C do 75°C. Ukazatel teploty se 7 diodami. Ochrana proti náhodnému sepnutí. Ochrana proti přehřátí. Funkce ochrany proti bakterii legionella. Vypínač funkce EcoSmart. Sledování spotřeby vody: Funkce ECO Smart. Paměť uložených dat i pří výpadku napětí. Ukazatel chytrého provozu. Ukazatel chybových hlášení. Provozní tlak 6 až 9 barů. Ochrana proti korozi prostřednictvím smaltu a hořčíkové anody. Připojení do napájecí sítě G 1/2. Záruka na smaltovanou nerezovou nádobu 4 roky. Dokumentace k tomuto produktu - MOREOMKS50PHSM_návod (Návod k použití CZ, 1.31 MB)
|
Návod k obsluze Ohřívač vody Mora EOMKS 50 PHSMStažení PDF návodu k obsluze pro Ohřívač vody Mora EOMKS 50 PHSM není v současné době možné. Soubor není připraven.
Technické parametry Ohřívač vody Mora EOMKS 50 PHSM| Záruka | 24 měsíců | | Další parametry | | Konstrukce ohřívače vody | zásobníkový | | Poloha instalace | svislý (vertikální) | Objem ohřívače vody Objem zásobníku u ohřívačů vody">Objem ohřívače vody | 50 l | | Druh ohřevu | elektrický | | Indikátor teploty | Ano | | Příkon | 2000 W | | Rozměry výrobku | | Šířka výrobku | 42.0 cm | | Výška výrobku | 69.0 cm | | Hloubka výrobku | 44.5 cm | | Hmotnost výrobku | 24.0 kg | | Rozměry balení | | Šířka balení | 49.0 cm | | Výška balení | 81.0 cm | | Hloubka balení | 48.0 cm | | Hmotnost balení | 26.0 kg |
Hodnocení100% uživatelů tento produkt doporučuje ostatním. Jak jste na tom Vy?

Tento produkt už hodnotilo 85 majitelů. Přidejte i Vaše hodnocení a zkušenosti s výrobkem.
Diskuze
Zeptejte se našich techniků, máte-li problémy s nastavením, nebo jste narazili v návodu na nejasnosti.
Využijte naši moderovanou diskuzi.
Diskuze je veřejná a slouží i ostatním návštěvníkům našich stránek, kteří se potýkají s podobnými problémy.
Diskuze je zatím prázdná - vložte první příspěvek
Vložit nový příspěvek / Dotaz / Komentář:
|
|
|
| Žádost o návod |
Nenašli jste návod, který hledáte? Dejte nám vědět a my se pokusíme chybějící návod doplnit:
Hledám návod / Žádost o návod
Vaše nejnovější žádosti o návod:
Svářečka fólií ETA electronic 0760
Dobrý den, dostal jsem darem uvedenou svářečku fólií, ale bez návodu. Požádal jsem firmu ETA o jeho ... sluchátka JBL 520BT... Návod k použití Osobní váha CONCEPT VO-2870 ... Bosch classicxx5... mycí stroj Bohman iC Evo Lion... Prosím Vás o manuál k tv JVC Lt-49vu83L
Za odpoveď vopred ďakujem
Ivan...
|
| Diskuze |
Poslední příspěvky v diskuzi:
Hlášení chyby Autor: Ludmila Objektiv Nikon 200-500 mm f 5.6G Dobrý den, prosím o radu. Mám objektiv nikkor af-s 200-500 5.6 ED používám ho na fotoaparátu Nikon z8 , dále mám adaptér ftzII a poslední dobou mi při focení hlásí chybu "Stiskněte tlačítko spouště pro resetování. Nejvíce to zlobí v režimu M,A když mám ... chybějící návod v češtině Autor: Blanka Indukční vařič KRAFT DELE KD4168 Vážení považuji za drzost nedodat návod v češtině a tady požadovat peníze za plnou verzi. Mohu Vás ubezpečit, že budu šířit Vaše "dobré jméno" dál. Očekávám plnou verzi do svého e-mailu. Možná byste rádi kontrolu svého podnikání že? Vaněčková... cistenie skla Autor: milan Trouba Mora VTS 546 DX Dobry den,potrebovali by sme vycistit sklo na dvierkach rury mora vt 546 dx. Mohli by ste nam ,prosim,poradit,ako sa da vytiahnut sklo z dvierok rury ?
Dakujem milan belas... dotaz Autor: Gabriela Radiopřijímač s DAB GoGEN DAB 300 dobrý den, jde vyměnit někde baterie do rádia? Prosím.... Dotaz prosim Autor: Jiří Meteorologická stanice EMOS E8466 černá stříbrná Dobrý den, mám již několik let meteor stanici Emos 8466 je to asi tři dny co se mi sami od sebe začali na displeji měnit barvy, i když jsem to restartoval a načetlo znova tak se to objevuje pořád do kola co prosím tím. Děkuji za Vaši odpověď
S pozdravem J. H. ... |
|