|
Český návod k obsluze Ohřívač vody Mora EOMKU 150 SKSM Pro zvětšení klikněte na obrázek
Obsah českého návodu Ohřívač vody Mora EOMKU 150 SKSM
- Zařazení produktu: Ohřívače vody Mora
- Značka: Mora
- Popis a obsah balení
- Technické informace a základní nastavení
- Často kladené otázky – FAQ
- Jak vyřešit problém (nelze zapnout, nereaguje, píše chybu, co dělat když...)
- Autorizovaný servis Mora Ohřívače vody
|
Návod k obsluze Ohřívač vody Mora EOMKU 150 SKSM obsahuje základní pokyny,
které je třeba respektovat. Před uvedením do provozu si pozorně přečtěte tento návod.
Dodržujte všechny bezpečnostní a výstražné pokyny a řiďte se uvedenými doporučeními.
Návod je nedílnou součástí výrobku Mora a v případě jeho prodeje nebo přemístění by měl být předán společně s výrobkem.
Dodržování tohoto návodu k použití je bezpodmínečným předpokladem pro ochranu
zdraví osob a pro uznání odpovědnosti výrobce za případné vady výrobku v průběhu záruční lhůty.
Stáhněte si oficiální Mora návod,
v němž naleznete pokyny k instalaci, použití, údržbě i servisu vašeho výrobku.
A nezapomeňte – nevhodným používáním výrobku Mora výrazně zkracujete jeho životnost!
|
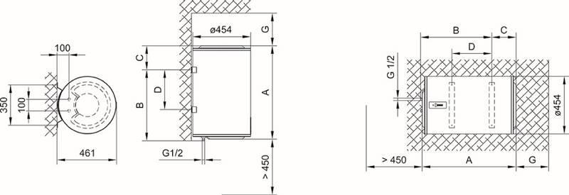
Popis produktuElektrický ohřívač MORA KOMFORT UNIVERZÁLNÍ, objem 150 l, možný přívod pro několik odběrových míst, svislá nebo vodorovná instalace, topná příruba s trubicovými tělesy na ohřev vzduchu. Elektronická řídící jednotka. Hlavní vypínač, tlačítko k seřízení teploty. Rozsah nastavení teploty od 10°C do 75°C. Ukazatel teploty se 7 diodami. Ochrana proti náhodnému sepnutí. Ochrana proti přehřátí. Funkce ochrany proti bakterii legionella. Vypínač funkce EcoSmart. Sledování spotřeby vody: Funkce ECO Smart. Paměť uložených dat i pří výpadku napětí. Ukazatel chybových hlášení. Provozní tlak 6 až 9 barů. Ochrana proti korozi prostřednictvím smaltu a hořčíkové anody. Připojení do napájecí sítě G 1/2. Záruka na smaltovanou nerezovou nádobu 6 let. Dokumentace k tomuto produktu - MOREOMKU150SKSM_návod.pdf (Návod k použití CZ, 3.79 MB)
|
Návod k obsluze Ohřívač vody Mora EOMKU 150 SKSMStažení PDF návodu k obsluze pro Ohřívač vody Mora EOMKU 150 SKSM není v současné době možné. Soubor není připraven.
Technické parametry Ohřívač vody Mora EOMKU 150 SKSM| Záruka | 24 měsíců | | Další parametry | | Konstrukce ohřívače vody | zásobníkový | | Poloha instalace | libovolný | Objem ohřívače vody Objem zásobníku u ohřívačů vody">Objem ohřívače vody | 150 l | | Druh ohřevu | elektrický | | Indikátor teploty | Ano | | Příkon | 2000 W | | Rozměry výrobku | | Šířka výrobku | 45.4 cm | | Výška výrobku | 133.5 cm | | Hloubka výrobku | 46.1 cm | | Hmotnost výrobku | 50.0 kg | | Rozměry balení | | Šířka balení | 49.0 cm | | Výška balení | 135.0 cm | | Hloubka balení | 48.0 cm | | Hmotnost balení | 52.0 kg |
Hodnocení90% uživatelů tento produkt doporučuje ostatním. Jak jste na tom Vy?

Tento produkt už hodnotilo 83 majitelů. Přidejte i Vaše hodnocení a zkušenosti s výrobkem.
Diskuze
Zeptejte se našich techniků, máte-li problémy s nastavením, nebo jste narazili v návodu na nejasnosti.
Využijte naši moderovanou diskuzi.
Diskuze je veřejná a slouží i ostatním návštěvníkům našich stránek, kteří se potýkají s podobnými problémy.
Diskuze je zatím prázdná - vložte první příspěvek
Vložit nový příspěvek / Dotaz / Komentář:
|
|
|
| Žádost o návod |
Nenašli jste návod, který hledáte? Dejte nám vědět a my se pokusíme chybějící návod doplnit:
Hledám návod / Žádost o návod
Vaše nejnovější žádosti o návod:
HERNÍ ŽIDLE S PODNOŽKOU QUATTRO CARBON RED... Gramofon Victrola Premiere V1, repro subwofer + poprosil bych o doporučení, jaká repra jsou k výrobku nejlepší... Jak se používají vakuovací dózy Pyrex. Na víku je připevněna fólie. Musí tam být? Mě se zdá, že brání vysávání.... Fotopast HUNTING TRAIL CAMERA PR 1000 360mpx 1080p... Laserová vodováha MAPOWER MPLL01... tablet doogee A9 pro...
|
| Diskuze |
Poslední příspěvky v diskuzi:
mob. tel Motorola moto 32g Autor: Jan Mobilní telefon Motorola Moto G32 6GB při pořizování fotek bych byl rád kdyby telefon vydával zvuk (cvaknutí) - neumím to nastavit - pokud to vůbec jde... Zubní kartáček Oral B iO series 3 Autor: Petra Zubní kartáček Oral-B iO Series 3 Ke kartáčku není přiložen jednoznačný návod. Obrázky opravdu nic moc nevysvětlí. Marně jsem poté hledala odpověď tady. Chtěla jsem si stáhnout návod, ale stále není k dispozici.
Jak tedy poznám, který modus je zapnutý? Je možné zaslat návod na mail?... Zavážecí loďka GPS V020 Autor: Petr Zavážecí loďka GPS V020 Včera jsem si koupil od vás cz návod k obsluze k této loďce, ale není to český návod, je to nějaká česko - slovenská hatmatilka, kterou najdu kdekoli na internetu a nemusím platit 100Kč. Takže bych rád český návod.
Děkuji
Alexandrovič ... Minecraft legends Jak otevřít knihu písní? Autor: neznámý Hra Nintendo SWITCH Minecraft Legends: Deluxe Nedaří se mi po stisknutí tlačítka R na Nintendo Switch otevřít knihu písní? Nemáte někdo radu co s tím?... Dotaz Autor: Jaroslav Mobilní telefon Samsung A55 Jak se vypíná mobilní telefon Samsung SM-A165F/ DSB Děkuji!... |
|