|
Český návod k obsluze Ohřívač vody Mora EOMKU 80 SKSM Pro zvětšení klikněte na obrázek
Obsah českého návodu Ohřívač vody Mora EOMKU 80 SKSM
- Zařazení produktu: Ohřívače vody Mora
- Značka: Mora
- Popis a obsah balení
- Technické informace a základní nastavení
- Často kladené otázky – FAQ
- Jak vyřešit problém (nelze zapnout, nereaguje, píše chybu, co dělat když...)
- Autorizovaný servis Mora Ohřívače vody
|
Návod k obsluze Ohřívač vody Mora EOMKU 80 SKSM obsahuje základní pokyny,
které je třeba respektovat. Před uvedením do provozu si pozorně přečtěte tento návod.
Dodržujte všechny bezpečnostní a výstražné pokyny a řiďte se uvedenými doporučeními.
Návod je nedílnou součástí výrobku Mora a v případě jeho prodeje nebo přemístění by měl být předán společně s výrobkem.
Dodržování tohoto návodu k použití je bezpodmínečným předpokladem pro ochranu
zdraví osob a pro uznání odpovědnosti výrobce za případné vady výrobku v průběhu záruční lhůty.
Stáhněte si oficiální Mora návod,
v němž naleznete pokyny k instalaci, použití, údržbě i servisu vašeho výrobku.
A nezapomeňte – nevhodným používáním výrobku Mora výrazně zkracujete jeho životnost!
|
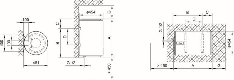
Popis produktuElektrický ohřívač MORA KOMFORT UNIVERZÁLNÍ, objem 80 l, možný přívod pro několik odběrových míst, svislá nebo vodorovná instalace, topná příruba s trubicovými tělesy na ohřev vzduchu. Elektronická řídící jednotka. Hlavní vypínač, tlačítko k seřízení teploty. Rozsah nastavení teploty od 10°C do 75°C. Ukazatel teploty se 7 diodami. Ochrana proti náhodnému sepnutí. Ochrana proti přehřátí. Funkce ochrany proti bakterii legionella. Vypínač funkce EcoSmart. Sledování spotřeby vody: Funkce ECO Smart. Paměť uložených dat i pří výpadku napětí. Ukazatel chybových hlášení. Provozní tlak 6 až 9 barů. Ochrana proti korozi prostřednictvím smaltu a hořčíkové anody. Připojení do napájecí sítě G 1/2. Záruka na smaltovanou nerezovou nádobu 6 let. Dokumentace k tomuto produktu - MOREOMKU80SKSM_návod.pdf (Návod k použití CZ, 3.79 MB)
|
Návod k obsluze Ohřívač vody Mora EOMKU 80 SKSMStažení PDF návodu k obsluze pro Ohřívač vody Mora EOMKU 80 SKSM není v současné době možné. Soubor není připraven.
Technické parametry Ohřívač vody Mora EOMKU 80 SKSM| Záruka | 24 měsíců | | Další parametry | | Konstrukce ohřívače vody | zásobníkový | | Poloha instalace | libovolný | Objem ohřívače vody Objem zásobníku u ohřívačů vody">Objem ohřívače vody | 80 l | | Druh ohřevu | elektrický | | Indikátor teploty | Ano | | Příkon | 2000 W | | Rozměry výrobku | | Šířka výrobku | 45.4 cm | | Výška výrobku | 82.0 cm | | Hloubka výrobku | 46.1 cm | | Hmotnost výrobku | 30.0 kg | | Rozměry balení | | Šířka balení | 49.0 cm | | Výška balení | 83.5 cm | | Hloubka balení | 48.0 cm | | Hmotnost balení | 32.0 kg |
Hodnocení50% uživatelů tento produkt doporučuje ostatním. Jak jste na tom Vy?

Tento produkt už hodnotilo 80 majitelů. Přidejte i Vaše hodnocení a zkušenosti s výrobkem.
Diskuze
Zeptejte se našich techniků, máte-li problémy s nastavením, nebo jste narazili v návodu na nejasnosti.
Využijte naši moderovanou diskuzi.
Diskuze je veřejná a slouží i ostatním návštěvníkům našich stránek, kteří se potýkají s podobnými problémy.
Diskuze je zatím prázdná - vložte první příspěvek
Vložit nový příspěvek / Dotaz / Komentář:
|
|
|
| Žádost o návod |
Nenašli jste návod, který hledáte? Dejte nám vědět a my se pokusíme chybějící návod doplnit:
Hledám návod / Žádost o návod
Vaše nejnovější žádosti o návod:
Tristar pd-9052 Raclettegrill... Dobrý den, potřebovala bych návod k obsluze pro ultrazvukový zvlhčovač Avair Ultra3. Děkuji... iPhone A1429... Scholl Velvet smooth PRO... Reproduktor REMAX RB-M9 návod ... Zdravím, Zapojil jsem sluchtka do PC DELL s Windows 11, ale nejde námdo nich zvuk. Můžete prosím poradit? Děkuji.
Návod pro herní sluchátka ...
|
| Diskuze |
Poslední příspěvky v diskuzi:
Fiskrars Autor: Milan Sada kuchyňských nožů Fiskars Edge 5 Mila Renato , U nas jsme meli stejny problem a rada je jednoduchá: ZABER ????????
“Kroutive” pohyby a kovou část uplne vyndat a pak opět zandat obráceně aby stojan stal ... Gramofon Autor: neznámý Gramofon Lenco LBT-188 černý hnědý Dobrý den, proč nám nejde připojit gramofon a bedýnku přes bluetooth. Vůbec se nám nedaří spárovat.Děkuji ... Výměna hlav Autor: Soňa Zastřihovač vlasů ETA Austin 8345 90000 Dobrý den, partnerovi jsem koupila strojek k Vánocům a nejdou vyměnit a zacvaknout zpět ty hlavy - nástavce. Jak na to prosím? K čemu by pak takový dárek měl, když to nemůže ani vyzkoušet? ... Fiskars Edge Autor: Renáta Sada kuchyňských nožů Fiskars Edge 5 Nedá sa nám zložiť stojan na nože, chceme ho postaviť na linku ale nerezové nožičky ktoré sú na čiernom podstavci sa nedajú nastaviť a silou to nechceme pokaziť. Poprosím ako ich treba vysunúť aby bol. Toho stojan na nože.Dakujem za odpoveď ... Sluchátka Urbanista Buenos Aires Autor: Nikol Sluchátka Urbanista Miami bílá Dobrý den . Nejde spárovat sluchátka Urbanista s iPad ( A16) přes Bluetooth. iPad nevidí sluchátka. Poraďte nějaký postup jak spárovat zařízení... |
|